詳細資料

建設公司

Dajia US

建案類型

大樓

登記用途

住家用

總面積

23 坪 (808 平方英呎)

土地 (持分) 坪數

-

警衛管理

管理費

1508

車位類型

-

公共設施

24小時禮賓服務、兒童遊樂室、媒體放映室、空中花園、代客泊車、大樓內的洗衣房、Live-in super、健身房、蒸氣浴、桑拿室、理療室、星光泳池 (Starlight Pool)

1 坪 = 35.5832 平方英呎。美國物件原面積單位為「平方英呎」,轉換成「坪」會有些許落差。

物件特色

紐約奢華地標

經典酒店式公寓

可俯瞰公園大道

全球最迷人且最具影響力的人士,一直以來都選擇居住在這個紐約地標性酒店。自 1931 年開幕以來,這座象徵紐約奢華的地標,一直是世界領袖、名人以及全球精英的首選居所。全球沒有其他酒店能夠為其住戶提供如此頂級的服務與無與倫比的生活方式,同時位於社會、商業及地緣政治事件的中心。 如今,這座位於公園大道的地標性建築正在進行前所未有的修復工程,將在這座傳奇酒店之上打造一系列現代化住宅,內部設計與設施由 Jean-Louis Deniot 巧妙設計。這裡不僅提供最精緻的居住空間,更搭配了世界一流的設施與服務,沒有任何紐約市的地址比華爾道夫酒店公寓更具魅力。 新推出的從套房到頂層公寓,價格從188萬美元起。

交通

學校

超市

娛樂

醫院

公司

Grand central

226.24 公尺

3 MIN

Grand central terminal

449.7 公尺

7 MIN

Grand central terminal

449.7 公尺

7 MIN

Grand central-42 st

562.92 公尺

10 MIN

520 park avenue

873.51 公尺

5 MIN

5 av/59 st

935.95 公尺

6 MIN

Times sq–42 st

1.1 KM

10 MIN

405-407 e 60th st garage

1.2 KM

8 MIN

405 east 63rd street - lot #71

1.4 KM

12 MIN

405 w 38th st parking

1.9 KM

16 MIN

Penn station

1.9 KM

13 MIN

Pier 90

2.4 KM

16 MIN

Pier 90

2.5 KM

16 MIN

520 west 28th street by zaha hadid

2.6 KM

17 MIN

90 east end ave

3 KM

15 MIN

520 east 86th inc

3.2 KM

15 MIN

Port imperial ferry corporation

3.9 KM

25 MIN

Port imperial ferry

4 KM

27 MIN

Lincoln harbor station

4.3 KM

21 MIN

更多交通資訊

預設交通:步行超過 15 分鐘,以車程顯示

房貸試算

寬限期後每月償還本息

$0元/月

30 年貸款總年限,4.879% 銀行利率(參考利率)

頭期款

$

%

紐約市曼哈頓|重現紐約經典奢華酒店式豪邸

New York, NY 10022

621011

開價

$270 萬美金

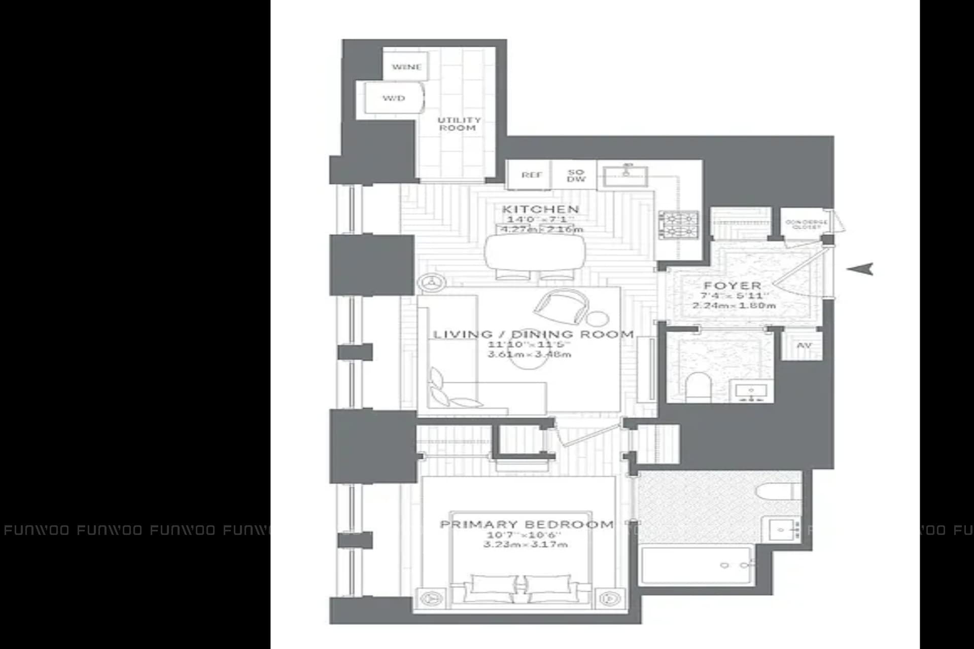
格局

1 房 2 廳 1.5 衛

總面積

23 坪 (808 平方英呎)

樓層/樓高

28 樓 / 52 層

屋齡

2024 年

建案資訊

了解建案

Nancy

房產顧問|曾意婷 Nancy

聯絡我們

立即線上專人諮詢

電子信箱:info@funwoo.com.tw

客服電話:02-7752-3755

美國服務據點

  • 149 West 27th Street, 3rd Floor, New York, NY 10001

  • 10232 Northeast 10th Street, Unit 1505, Bellevue, WA 98004

  • 7404 W Buckhorn Trl, Peoria, AZ 85383

台灣服務據點

  • 台北市信義區松高路11號25樓
    統一國際大樓

  • 竹北市復興二路281號1樓
    新竹高鐵2號出口

  • 台中市西區館前路57號1樓
    全國大飯店

  • 雲林縣虎尾鎮永興路427號
    雲林高鐵站1號出口