詳細資料

建設公司

Related Companies and Mitsui

建案類型

大樓

登記用途

住家用

總面積

77 坪 (2752 平方英呎)

土地 (持分) 坪數

-

警衛管理

管理費

4743

車位類型

-

公共設施

挑高接待大廳、24 小時門房與禮賓服務、綠化車道中庭、河景露台、烤肉區、戶外休憩座椅、親子遊戲區、創意工坊、酒吧社交區、高爾夫模擬室、專屬電影院、多功能宴會廳、遊戲休閒空間、75呎恒溫泳池、兒童泳池、蒸氣室/桑拿、瑜伽皮拉提斯教室、重訓健身房、壁球室、寵物Spa

1 坪 = 35.5832 平方英呎。美國物件原面積單位為「平方英呎」,轉換成「坪」會有些許落差。

物件特色

河濱第一排

鄰近Chelsea Piers

雙巨匠聯手設計

經典石材工藝

車道中庭

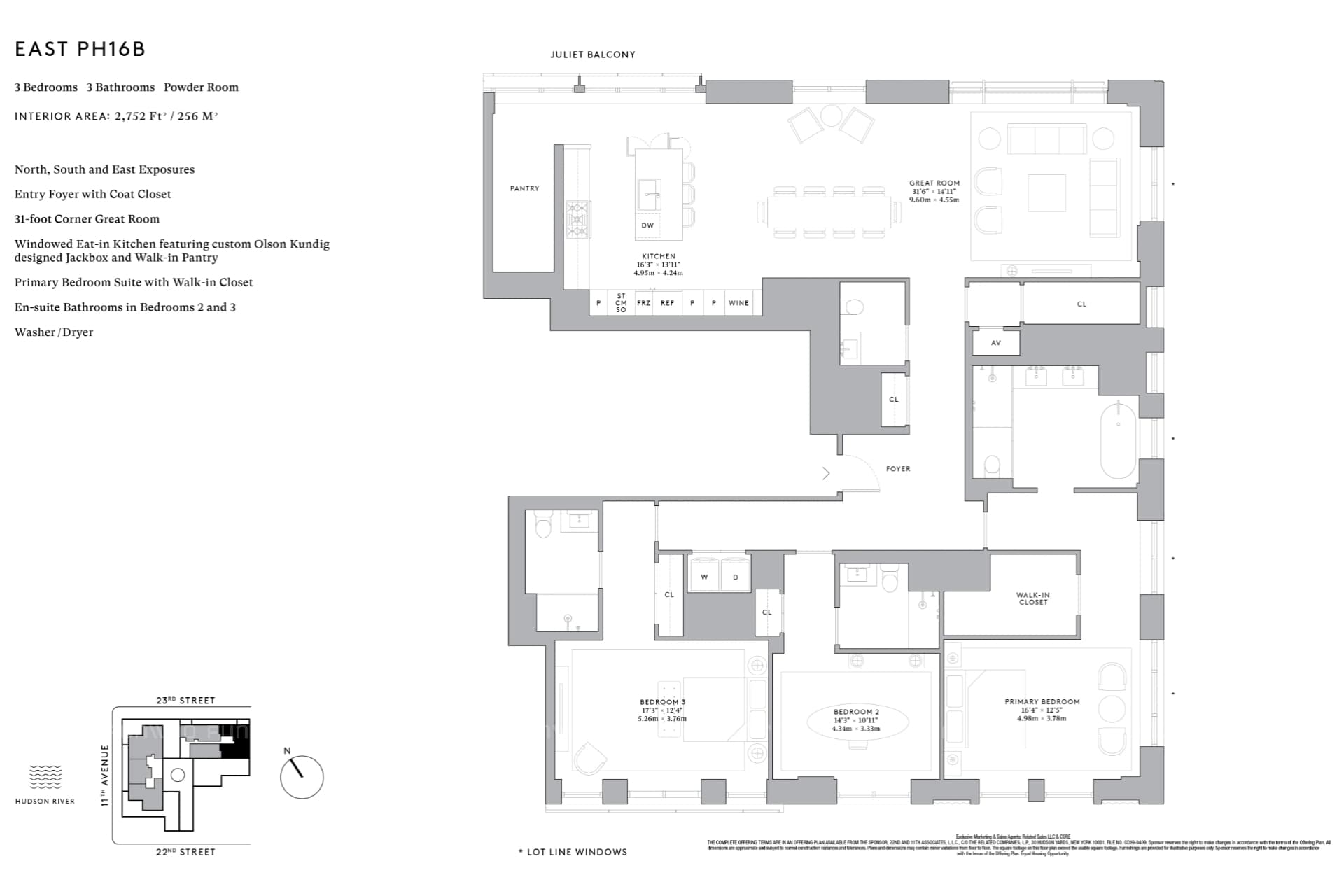
可立即入住 東翼頂層公寓面積 2,752 平方英尺(約 255 平方公尺),配置三間臥室與三個半衛浴。開放式客餐廳空間採北、南、東三面採光,擁有長達 31 英尺的轉角大客廳、帶窗的廚房、由 Olson Kundig 設計的專屬 Jackbox 吧檯及步入式儲藏室,全屋鋪設溫潤木質地板,並設有落地窗景觀設計。主臥套房配備大型步入式衣帽間,兼具隱私與尊榮感。 建案介紹 坐落於紐約哈德遜河旁,鄰切爾西碼頭,以歷史風貌為底蘊、工藝為語彙,這座 25 層住宅作品融合手工砌磚、石材細節與金屬質構,是建築經典與現代生活的交匯。 由 Robert A.M. Stern Architects 與 Olson Kundig 兩大建築巨匠攜手,外觀呈現經典磚石立面、金屬細節與光影變化,而室內則注入溫潤材質、開闊格局與巧妙工藝。 每一戶皆被精心打造以呼應河景與城市輪廓,落地窗、私人露台、寬敞空間與細緻材質鋪陳,共同構築現代紐約高端住宅新標竿。 公共設施 🏊‍♀️ 健康與養生設施 11,000 多平方英呎健康俱樂部 75 呎長恒溫泳池與兒童泳池 瑜伽、普拉提教室與重訓設備 蒸氣室、桑拿與 SPA 養生空間 🎬 社交與休閒空間 「Crow’s Nest」高空休憩區,結合酒吧、遊戲桌與高爾夫模擬設備 專屬電影院,可作多功能表演與私人放映使用 多用途宴會廳與備餐廚房,適合私人聚會或活動 👨‍👩‍👧 家庭友善設施 「The Beluga Pod」雙層高兒童遊戲空間,結合攀岩、吊網與互動遊戲設計 「Sandbox Maker」創意工作坊,配備 3D 印表機與實驗廚房,啟發 STEAM 學習 親子休憩區與互動閱讀角 🌿 戶外與景觀設計 河畔景觀露台「Hudson Terrace」設有火坑、烤肉區與休憩座椅 部分住宅附私人陽台或露台,延伸室內生活尺度 入口車道與中庭綠化景觀動線,強化私密性與尊榮感

交通

學校

超市

娛樂

醫院

公司

34 st-hudson yards

899.53 公尺

9 MIN

Penn station

1.2 KM

12 MIN

34 st-penn station

1.3 KM

8 MIN

Lincoln harbor station

2.1 KM

15 MIN

Pier 90

2.3 KM

12 MIN

Hoboken

2.5 KM

21 MIN

Grand central terminal

2.6 KM

19 MIN

Grand central terminal

2.6 KM

19 MIN

Ninth street/congress street station

2.7 KM

21 MIN

Port imperial ferry corporation

3.2 KM

20 MIN

Brookfield place / battery park city

3.9 KM

14 MIN

Grove st

4.4 KM

22 MIN

Insomnia cookies

4.7 KM

15 MIN

Riverwalk crossing luxury apartments

4.7 KM

34 MIN

90 water st garage

4.9 KM

17 MIN

Champion parking 90

5.8 KM

22 MIN

Huakang massage spa

6.4 KM

18 MIN

更多交通資訊

預設交通:步行超過 15 分鐘,以車程顯示

房貸試算

寬限期後每月償還本息

$0元/月

30 年貸款總年限,4.879% 銀行利率(參考利率)

頭期款

$

%

紐約市曼哈頓|Chelsea河畔雙匠傳世名宅

New York, NY 10011

350605

開價

$850 萬美金

格局

3 房 2 廳 3.5 衛

總面積

77 坪 (2752 平方英呎)

樓層/樓高

16 樓 / 25 層

屋齡

2022 年

建案資訊

了解建案

Nancy

房產顧問|曾意婷 Nancy

聯絡我們

立即線上專人諮詢

電子信箱:info@funwoo.com.tw

客服電話:02-7752-3755

美國服務據點

  • 紐約

    149 W 27th Street Floor 3, NY 10001

  • 鳳凰城

    7404 W Buckhorn Trl , Peoria, AZ 85383

台灣服務據點

    台北市信義區松高路11號25樓(統一國際大樓)

    竹北市復興二路281號1樓(新竹高鐵2號出口)

    台中市西區館前路57號1樓(全國大飯店)

    雲林縣虎尾鎮永興路427號(雲林高鐵站1號出口)