詳細資料

建設公司

CetraRuddy Architects

建案類型

大樓

登記用途

住家用

總面積

40 坪 (1416 平方英呎)

土地 (持分) 坪數

-

警衛管理

管理費

2354

車位類型

-

公共設施

撞球間、交誼廳、健身房、游泳池、壁球室

1 坪 = 35.5832 平方英呎。美國物件原面積單位為「平方英呎」,轉換成「坪」會有些許落差。

物件特色

近麥迪遜廣場花園

知名Rockefeller集團建築

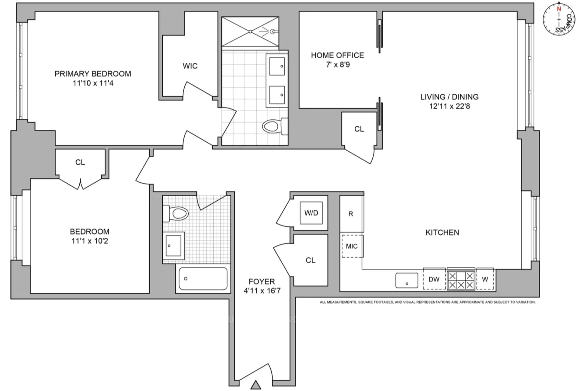
此戶兩房兩衛,室內面積約 1,416 平方英尺,並擁有獨立且具彈性的書房空間。挑高約 11 英尺(約 3.35 公尺),採南北雙向採光,搭配9 英尺(約 2.74 公尺)的大面窗景,享有極佳視野與自然光線,全戶配備訂製窗簾與遮光設計。 公領域採開放式廚房,並以玻璃拉門連結書房,營造 Loft 當代生活氛圍。廚房配置 Miele 家電、恆溫酒櫃、霧面深炭灰木作、金屬框玻璃吊櫃與 Calacatta 霧面大理石檯面,並具備充足收納與食材儲藏空間。主臥面向南側,配備寬敞步入式衣櫃與大理石衛浴,包含乾濕分離淋浴、訂製檯面、黃銅金屬五金與地暖系統,兼具美感與舒適度。全室鋪設寬板木地板,並設有室內洗衣烘衣設備。 在紐約這座永遠流動的城市,一座傳奇建物已經崛起。就像洛克菲勒中心一樣,散發著高品質、美麗和建築理念的獨特光芒,將這座城市的經典與未來完美融合。 由CetraRuddy打造的建案,是一座現代建築的驕傲巔峰,它不僅向紐約的歷史致敬,更引領著時尚生活的未來。透過標誌性的建築設計,室內空間和公共空間的精心策劃,每一個細節都散發著無法抗拒的魅力。 在這裡,您不僅能夠欣賞到城市的壯麗景色,還能感受到紐約的獨特魅力和活力。從浴室到雙層頂層公寓,每一處空間都彰顯著對工藝、質感和設計的極致追求。而靈活的生活空間更讓您隨心所欲地打造出屬於自己的理想家園。 這裡不僅有著城市的經典,更有著未來的希望。讓我們一起共同見證,這座城市的新地標正在崛起。 在NoMad 少見具備完整頂級公設的豪華住宅代表。迎賓大廳挑高而氣勢非凡,設有休憩座位與壁爐,另備住戶 Lounge 及戶外庭園。地下一層為由 Fhitting Room 設計的高規格健身房,並設有 50 英尺(約 15.24 公尺)長游泳池,以綠氧化釉手工磚與乾式桑拿營造專業水療氛圍,同層並配置專業級壁球球場。 大樓頂層(37 樓)設有高空生活設施,包括圖書交誼廳(含撞球桌)、私人宴會餐廳,以及兩座享有 360 度城市景觀的露台。社區提供 24 小時門房與駐場管理服務、冷藏包裹室、自行車室及大型儲物空間,完整體現現代豪華住宅的機能與便利。

交通

學校

超市

娛樂

醫院

公司

28 St

0 公尺

0 share.unit.

28 St

0.4 公尺

6 分鐘

33 St

0.4 公尺

6 分鐘

90 degree by reflex retail store

758.99 公尺

14 分鐘

Penn station

1.1 公里

7 分鐘

Grand central-42 st

1.2 公里

5 分鐘

34 st - penn station

1.2 公里

8 分鐘

Grand central terminal

1.3 公里

7 分鐘

Grand central terminal

1.3 公里

7 分鐘

405 w 38th st parking

1.6 公里

12 分鐘

520 w 28

1.7 公里

10 分鐘

520 park avenue

2.6 公里

12 分鐘

405-407 e 60th st garage

2.7 公里

14 分鐘

405 east 63rd street - lot #71

3 公里

16 分鐘

90 bowery

3.2 公里

17 分鐘

Lincoln harbor station

3.9 公里

18 分鐘

Hoboken

4 公里

23 分鐘

Port imperial ferry

4.3 公里

24 分鐘

Brookfield place / battery park city

4.3 公里

20 分鐘

90 east end ave

4.7 公里

22 分鐘

520 east 86th inc

4.8 公里

19 分鐘

York st

4.8 公里

18 分鐘

York st

4.8 公里

18 分鐘

更多交通資訊

預設交通:步行超過 15 分鐘,以車程顯示

房貸試算

寬限期後每月償還本息

$0元/月

30 年貸款總年限,4.879% 銀行利率(參考利率)

頭期款

$

%

洛克斐勒家族紐約首棟住宅大樓

New York, NY

428333

開價

2,990,000美金

格局

2 房 2 廳 2 衛

總面積

40 坪 (1416 平方英呎)

樓層/樓高

16 樓 / 45 層

屋齡

2021 年

建案資訊

了解建案

Nancy

房產顧問|曾意婷 Nancy

聯絡我們

立即線上專人諮詢

電子信箱:info@funwoo.com.tw

客服電話:02-7752-3755

美國服務據點

  • 149 West 27th Street, 3rd Floor, New York, NY 10001

  • 10232 Northeast 10th Street, Unit 1505, Bellevue, WA 98004

  • 7404 W Buckhorn Trl, Peoria, AZ 85383

台灣服務據點

  • 台北市信義區松高路11號25樓
    統一國際大樓

  • 竹北市復興二路281號1樓
    新竹高鐵2號出口

  • 台中市西區館前路57號1樓
    全國大飯店

  • 雲林縣虎尾鎮永興路427號
    雲林高鐵站1號出口